Clérac (Charente-Maritime 17)
Avec IGC, construisez sereinement votre projet de vie !
Proposé par notre partenaire foncier, découvrez ce joli terrain de 700m² idéalement situé sur la commune de Clérac.
A seulement quelques minutes des commodités locales, ce terrain est idéal pour concrétiser votre projet de construction personnalisé. Le terrain offre une jolie vue dégagée !
Avec IGC, constructeur reconnu depuis plus de 40 ans, vous bénéficiez de toutes les garanties d’un constructeur solide et expérimenté pour construire en toute sérénité. N’attendez plus pour imaginer la maison qui vous ressemble !
Contactez Megan PERRIER (O6.47.73.57.37) pour une étude gratuite et personnalisée de votre projet.
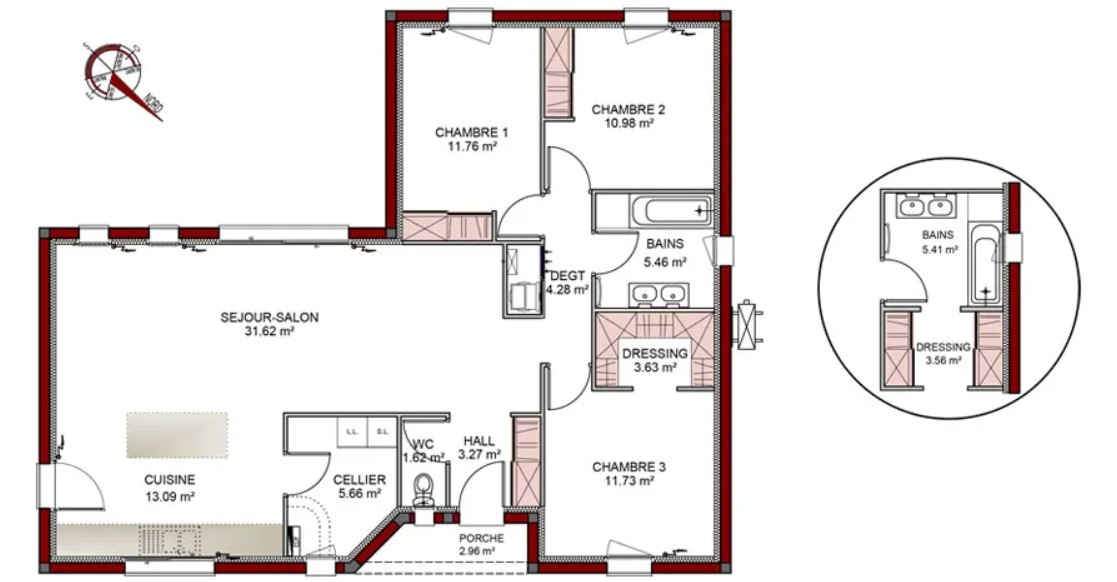
Exemple d’enveloppe budgétaire pour la réalisation d’une maison IGC sur le terrain de nos partenaires fonciers. Maison prête à décorer, tous frais liés à la structure compris hors frais annexes (financier et notaire). Photo non contractuelle.
Les champs obligatoires sont marqués d’un astérisque (*). Les informations recueillies par IGC, à partir de ce formulaire, font l’objet d’un traitement informatisé nécessaire au traitement et à la gestion des relations commerciales. Ces données ne feront pas l’objet d’un autre traitement que celui mentionné. Conformément à la règlementation applicable, vous disposez d’un droit d’accès, de rectification et d’opposition aux informations vous concernant. Pour plus d’informations sur le traitement de vos données, consultez notre politique de confidentialité


