Montguyon (Charente-Maritime 17)
Avec IGC, construisez sereinement votre projet de vie !
Proposé par notre partenaire foncier, découvrez ce joli terrain de 1300m² idéalement situé sur la commune de Montguyon.
A seulement quelques minutes des commodités locales, ce terrain offrant une jolie vue dégagée est idéal pour concrétiser votre projet de construction personnalisé.
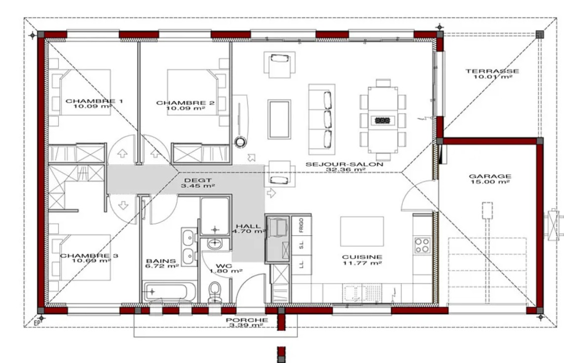
Nous vous proposons de vous inspirer de notre modèle « Toulousaine », une jolie maison familiale de 91m² aux prestations soignées. Elle est modulable, facile à vivre et confortable. Présentée avec 3 chambres, et une terrasse couverte venez jouer avec les volumes et vous approprier son plan.
Avec IGC, constructeur reconnu depuis plus de 40 ans, vous bénéficiez de toutes les garanties d’un constructeur solide et expérimenté pour construire en toute sérénité. N’attendez plus pour imaginer la maison qui vous ressemble !
Contactez Megan PERRIER (O6.47.73.57.37) pour une étude gratuite et personnalisée de votre projet.
Exemple d’enveloppe budgétaire pour la réalisation d’une maison IGC sur le terrain de nos partenaires fonciers. Maison prête à décorer, tous frais liés à la structure compris hors frais annexes (financier et notaire). Photo non contractuelle.
Les champs obligatoires sont marqués d’un astérisque (*). Les informations recueillies par IGC, à partir de ce formulaire, font l’objet d’un traitement informatisé nécessaire au traitement et à la gestion des relations commerciales. Ces données ne feront pas l’objet d’un autre traitement que celui mentionné. Conformément à la règlementation applicable, vous disposez d’un droit d’accès, de rectification et d’opposition aux informations vous concernant. Pour plus d’informations sur le traitement de vos données, consultez notre politique de confidentialité


