Pugnac (Gironde 33)
Calme, nature et proximité, ce terrain a tout pour plaire !
C’est ici que votre projet de vie à Pugnac commence. Axe routier pour rejoindre Bordeaux et à 10 minutes de St André de Cubzac, découvrez ce beau terrain prêt à accueillir votre projet.
Cette charmante commune allie calme rural et proximité urbaine, avec toutes les commodités à portée de main : écoles, commerces, services et accès rapide à l’A10.
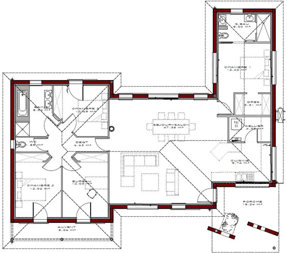
Nous vous proposons de vous inspirer de notre modèle Gaïa, une maison dans l’ère du temps et moderne. L’élégante maison Gaïa 132 se compose de 3 grandes chambres, d’un bureau et d’un vaste salon-séjour ouvert de part et d’autre sur de belles terrasses extérieures en bois idéales pour profiter de repas ensoleillés ou d’après-midi farniente. Selon l’orientation du terrain et selon vos envies, de nombreuses options sont possibles telles qu’une pergola ou des volets persiennes coulissants en bois exotique.
Le terrain vendu viabilisé est proposé dans le cadre d’un projet de construction avec notre agence IGC de St André de Cubzac et en lien avec notre partenaire foncier. Surface idéale pour une maison familiale de plain-pied moderne, à adapter selon vos envies et votre mode de vie.
Contactez Megan au O6.47.73.57.37 dès maintenant pour plus d’informations et pour imaginer ensemble votre futur chez-vous, signé IGC !
Exemple d’enveloppe budgétaire pour la réalisation d’une maison IGC sur le terrain de nos partenaires fonciers. Maison prête à décorer, tous frais liés à la structure compris hors frais annexes (financier et notaire). Photo non contractuelle.
Les champs obligatoires sont marqués d’un astérisque (*). Les informations recueillies par IGC, à partir de ce formulaire, font l’objet d’un traitement informatisé nécessaire au traitement et à la gestion des relations commerciales. Ces données ne feront pas l’objet d’un autre traitement que celui mentionné. Conformément à la règlementation applicable, vous disposez d’un droit d’accès, de rectification et d’opposition aux informations vous concernant. Pour plus d’informations sur le traitement de vos données, consultez notre politique de confidentialité


