Venerque (Haute Garonne 31)
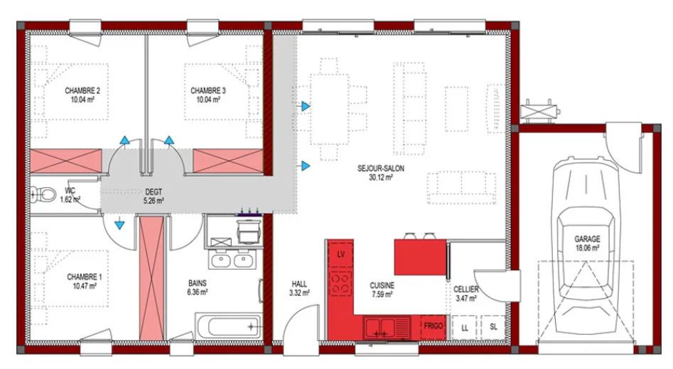
Envie de devenir propriétaire à 15min de Portet sur Garonne ? Découvrez cette maison moderne idéalement située à Venerque, sur un terrain de 225 m², Composée d’une grande pièce de vie lumineuse, une cuisine ouverte avec un cellier attenant et de 3 chambres. Entièrement personnalisable suivant vos exigences. Constructeur de qualité, nous vous offrons notre expertise pour concrétiser votre projet.
Exemple d’enveloppe budgétaire pour la réalisation d’une maison IGC sur le terrain de nos partenaires fonciers. Maison prête à décorer, tous frais liés à la structure compris hors frais annexes (financier et notaire). Photo non contractuelle.
Les champs obligatoires sont marqués d’un astérisque (*). Les informations recueillies par IGC, à partir de ce formulaire, font l’objet d’un traitement informatisé nécessaire au traitement et à la gestion des relations commerciales. Ces données ne feront pas l’objet d’un autre traitement que celui mentionné. Conformément à la règlementation applicable, vous disposez d’un droit d’accès, de rectification et d’opposition aux informations vous concernant. Pour plus d’informations sur le traitement de vos données, consultez notre politique de confidentialité


