Bénesse-maremne (Landes 40)
Située à Bénesse-Maremne, cette maison de 128m2 présente un cadre de vie agréable et idéal pour une famille.
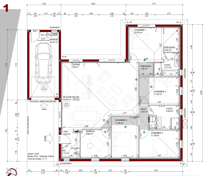
Cette maison propose 6 pièces, dont 3 chambres,1 suite parentale avec salle d’eau et de 2 dressing, et 1 bureau.
Au coeur de la maison, un séjour-salon-cuisine de plus de 45 m2 offre une pièce de vie spacieuse et lumineuse.
Concernant l’extérieur, un jardin de 510m2 vous permets d’aménager un espace extérieur selon vos choix.
Le garage est en option est n’est donc pas compris dans le prix de du rpojet.
Ce projet est proposé par IGC construction Angresse, il pourra être modifié et finalisé selon vos souhaits et votre budget.
450 000 euros HFN, contrat de maison prête à décorer ( reste à votre charge les peintures intérieurs, l’aménagement de la cuisine et des placards ).
Les informations sur les risques auxquels ce bien est exposé sont disponibles sur le site Géorisques : https://www.georisques.gouv.fr/minformer-sur-un-risque
Exemple d’enveloppe budgétaire pour la réalisation d’une maison IGC sur le terrain de nos partenaires fonciers. Maison prête à décorer, tous frais liés à la structure compris hors frais annexes (financier et notaire). Photo non contractuelle.
Les champs obligatoires sont marqués d’un astérisque (*). Les informations recueillies par IGC, à partir de ce formulaire, font l’objet d’un traitement informatisé nécessaire au traitement et à la gestion des relations commerciales. Ces données ne feront pas l’objet d’un autre traitement que celui mentionné. Conformément à la règlementation applicable, vous disposez d’un droit d’accès, de rectification et d’opposition aux informations vous concernant. Pour plus d’informations sur le traitement de vos données, consultez notre politique de confidentialité


