Saubion (Landes 40)
Découvrez cette belle maison neuve de 130m2, pensée pour offrir confort et fonctionnalité dans un cadre agréable.
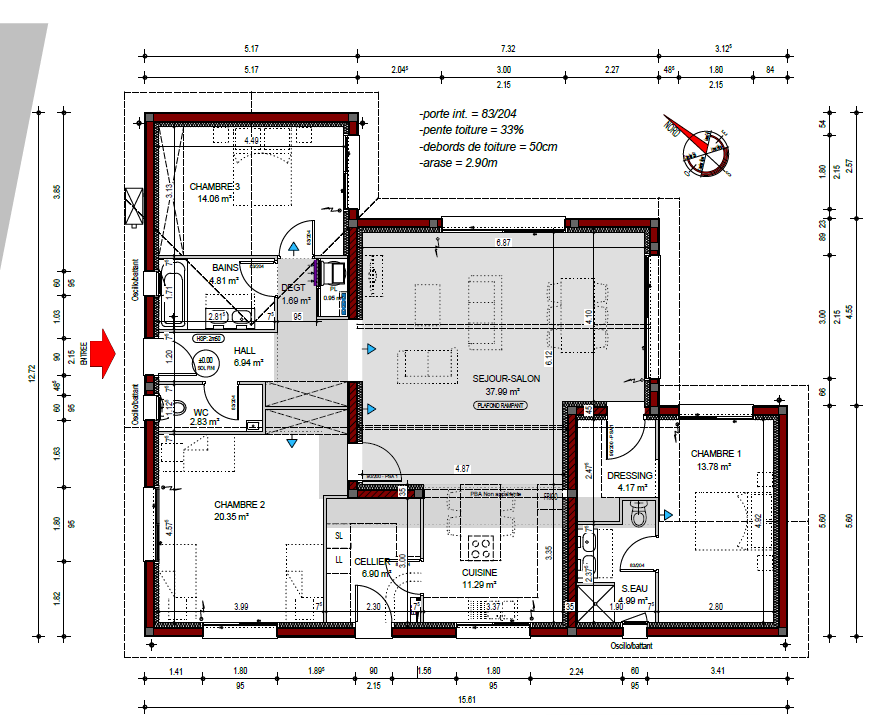
Elle se compose d’un séjour-salon-cuisine lumineux de 40m2, ainsi que d’un cellier. Elle propose trois chambres dont une suite parentale avec dressing et salle d’eau.
A l’extérieur, vous profiterez d’un jardin de 632m2 à aménager selon vos envies.
Ce projet est proposé par IGC construction Angresse, il pourra être modifié et finalisé selon vos souhaits et votre budget.
495 000 euros HFN, contrat de maison prête à décorer ( reste à votre charge les peintures intérieurs, l’aménagement de la cuisine et des placards ).
Les informations sur les risques auxquels ce bien est exposé sont disponibles sur le site Géorisques : https://www.georisques.gouv.fr/minformer-sur-un-risque
Exemple d’enveloppe budgétaire pour la réalisation d’une maison IGC sur le terrain de nos partenaires fonciers. Maison prête à décorer, tous frais liés à la structure compris hors frais annexes (financier et notaire). Photo non contractuelle.
Les champs obligatoires sont marqués d’un astérisque (*). Les informations recueillies par IGC, à partir de ce formulaire, font l’objet d’un traitement informatisé nécessaire au traitement et à la gestion des relations commerciales. Ces données ne feront pas l’objet d’un autre traitement que celui mentionné. Conformément à la règlementation applicable, vous disposez d’un droit d’accès, de rectification et d’opposition aux informations vous concernant. Pour plus d’informations sur le traitement de vos données, consultez notre politique de confidentialité


