Soustons (Landes 40)
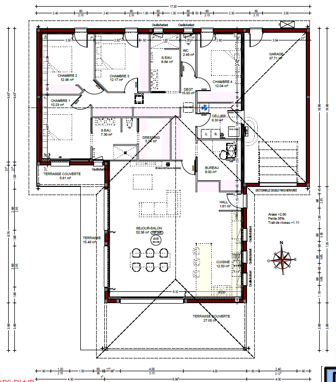
Située à Soustons, cette maison spacieuse de 165m2 offre des volumes généreux et un agencement idéal pour une vie de famille confortable.
Elle se compose d’un vaste séjour-salon-cuisine lumineux de 65m2. La partie nuit comprend 4 chambres, 1 bureau 2 salles d’eau ainsi qu’un dressing.
Un garage de plus de 35m2 complète ce bien et apporte un espace de stationnement et de rangement appréciable.
Implantée sur un terrain de 663m2, cette maison offre un beau jardin à aménager selon vos envies.
Ce projet est proposé par IGC construction Angresse, il pourra être modifié et finalisé selon vos souhaits et votre budget.
615 600 euros HFN, contrat de maison prête à décorer ( reste à votre charge les peintures intérieurs, l’aménagement de la cuisine et des placards ).
Les informations sur les risques auxquels ce bien est exposé sont disponibles sur le site Géorisques : https://www.georisques.gouv.fr/minformer-sur-un-risque
Exemple d’enveloppe budgétaire pour la réalisation d’une maison IGC sur le terrain de nos partenaires fonciers. Maison prête à décorer, tous frais liés à la structure compris hors frais annexes (financier et notaire). Photo non contractuelle.
Les champs obligatoires sont marqués d’un astérisque (*). Les informations recueillies par IGC, à partir de ce formulaire, font l’objet d’un traitement informatisé nécessaire au traitement et à la gestion des relations commerciales. Ces données ne feront pas l’objet d’un autre traitement que celui mentionné. Conformément à la règlementation applicable, vous disposez d’un droit d’accès, de rectification et d’opposition aux informations vous concernant. Pour plus d’informations sur le traitement de vos données, consultez notre politique de confidentialité


