La jarrie (Charente-Maritime 17)
A 20 minutes de La Rochelle, sur la commune de LA JARRIE, nous vous présentons un projet de construction sur un terrain viabilisé. Exposée Sud-Ouest, cette large parcelle d’environ 430 m2 bénéficie d’une vue dégagée.
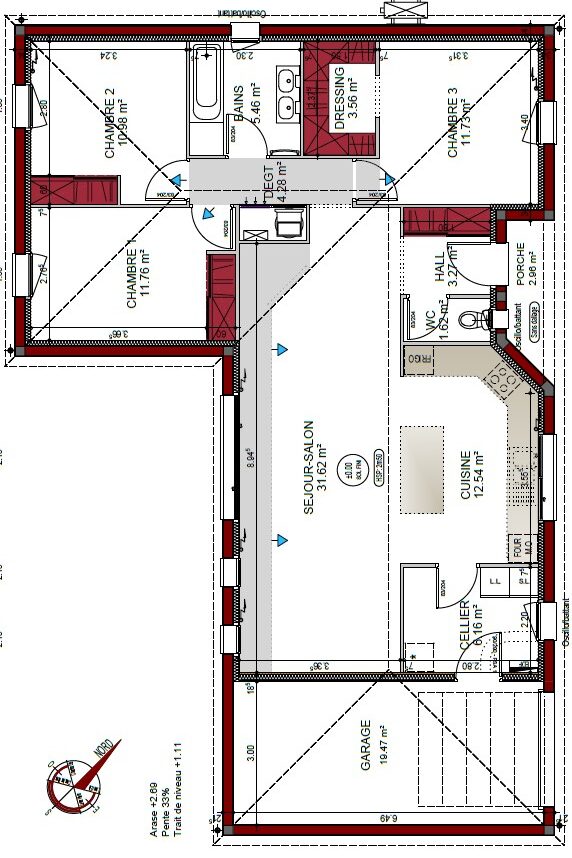
IGC construction vous propose une maison familiale de 103 m2 comprenant 3 chambres, un dressing, une pièce de vie traversante de plus de 44 m2, une salle de bain et un WC séparé. Cette construction dispose également d’un profond garage.
Avec IGC, faites le choix de la sérénité et de la sécurité pour mener à bien votre projet de construction :
– 45 ans d’expérience,
– Prix ferme et définitif pendant 12 mois,
– Excellent taux de Dommages-d’Ouvrages,
– Cotation Banque de France « Excellent ».
Prix du terrain seul : 153 080 €. (Hors frais de notaire).
Contact : Ugo DA SILVA O6.25.25.66.47 – Chargé de projet IGC – Pour plus d’informations
(Prix assurances comprises. Estimation des frais de viabilisation, accès, raccordements et évacuations des terres incluses. Hors frais de notaire. Peintures et taxes non comprises. Terrain sélectionné sous réserve de disponibilité auprès de notre partenaire foncier. Conditions et visuels non contractuels).
Exemple d’enveloppe budgétaire pour la réalisation d’une maison IGC sur le terrain de nos partenaires fonciers. Maison prête à décorer, tous frais liés à la structure compris hors frais annexes (financier et notaire). Photo non contractuelle.
Les champs obligatoires sont marqués d’un astérisque (*). Les informations recueillies par IGC, à partir de ce formulaire, font l’objet d’un traitement informatisé nécessaire au traitement et à la gestion des relations commerciales. Ces données ne feront pas l’objet d’un autre traitement que celui mentionné. Conformément à la règlementation applicable, vous disposez d’un droit d’accès, de rectification et d’opposition aux informations vous concernant. Pour plus d’informations sur le traitement de vos données, consultez notre politique de confidentialité


