Saint-laurent-de-la-prée (Charente-Maritime 17)
Nous vous proposons un projet de construction de maison individuelle IGC à Saint-Laurent-de-la-Prée, à proximité immédiate de Fouras et du littoral charentais.
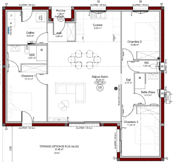
Le projet comprend une maison moderne de 105 m² avec 3 chambres dont une suite parentale avec salle d’eau, un grand séjour de 43 m² avec cuisine ouverte, une salle d’eau et WC séparé.
Les atouts du projet :
- Accompagnement complet par un chargé de projet dédié
- Conception sur mesure avec notre bureau d’études
- Garanties et assurances incluses (CCMI, dommage-ouvrage, etc.)
Contact : Ugo DA SILVA O6.25.25.66.47 – Chargé de projet IGC – Pour plus d’informations
(Prix assurances comprises. Estimation viabilisation, accès, raccordements et évacuations des terres incluses. Hors frais de notaire. Peintures et taxes non comprises. Terrain sélectionné sous réserve de disponibilité auprès de notre partenaire foncier. Conditions et visuels non contractuels).
Exemple d’enveloppe budgétaire pour la réalisation d’une maison IGC sur le terrain de nos partenaires fonciers. Maison prête à décorer, tous frais liés à la structure compris hors frais annexes (financier et notaire). Photo non contractuelle.
Les champs obligatoires sont marqués d’un astérisque (*). Les informations recueillies par IGC, à partir de ce formulaire, font l’objet d’un traitement informatisé nécessaire au traitement et à la gestion des relations commerciales. Ces données ne feront pas l’objet d’un autre traitement que celui mentionné. Conformément à la règlementation applicable, vous disposez d’un droit d’accès, de rectification et d’opposition aux informations vous concernant. Pour plus d’informations sur le traitement de vos données, consultez notre politique de confidentialité


