Vérines (Charente-Maritime 17)
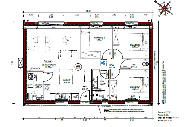
À Vérines, saisissez une belle opportunité avec ce terrain viabilisé de 386 m², idéalement situé dans un cadre calme et agréable. Ce projet inclut la construction d’une maison moderne IGC de 80 m² offrant trois chambres confortables et un salon spacieux baigné de lumière, parfait pour accueillir votre famille. La cuisine ouverte et l’agencement optimisé garantissent un espace convivial et fonctionnel.
À seulement quelques minutes de La Rochelle, vous profiterez d’un environnement paisible tout en restant proche des commodités. Contactez-nous dès aujourd’hui pour concrétiser votre projet et donner vie à votre future maison.
Les atouts du projet :
- Accompagnement complet par un chargé de projet dédié
- Conception sur mesure avec notre bureau d’études
- Garanties et assurances incluses (CCMI, dommage-ouvrage, etc.)
Contact : Ugo DA SILVA O6.25.25.66.47 – Chargé de projet IGC – Pour plus d’informations
(Prix assurances comprises. Estimation viabilisation, accès, raccordements et évacuations des terres incluses. Hors frais de notaire. Peintures et taxes non comprises. Terrain sélectionné sous réserve de disponibilité auprès de notre partenaire foncier. Conditions et visuels non contractuels).
Exemple d’enveloppe budgétaire pour la réalisation d’une maison IGC sur le terrain de nos partenaires fonciers. Maison prête à décorer, tous frais liés à la structure compris hors frais annexes (financier et notaire). Photo non contractuelle.
Les champs obligatoires sont marqués d’un astérisque (*). Les informations recueillies par IGC, à partir de ce formulaire, font l’objet d’un traitement informatisé nécessaire au traitement et à la gestion des relations commerciales. Ces données ne feront pas l’objet d’un autre traitement que celui mentionné. Conformément à la règlementation applicable, vous disposez d’un droit d’accès, de rectification et d’opposition aux informations vous concernant. Pour plus d’informations sur le traitement de vos données, consultez notre politique de confidentialité


