Saint-simon-de-bordes (Charente-Maritime 17)
Proposé par notre partenaire foncier, découvrez ce joli terrain de 972m² idéalement situé sur la commune de St Simon de Bordes à 5 minutes de Jonzac et 10 minutes de l’autoroute A10.
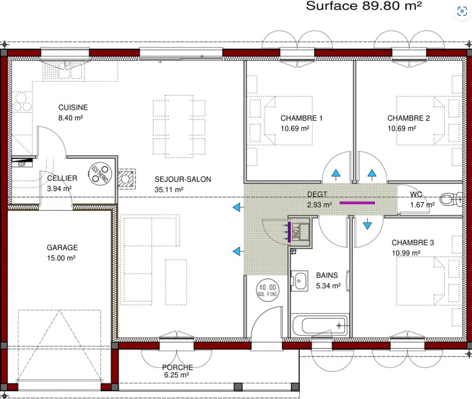
Situé dans un environnement calme et recherché, ce beau terrain viabilisé vous offre l’opportunité de construire la maison idéale sur un terrain bien exposé avec un bel environnement paisible et verdoyant ! Nous vous proposons de vous inspirer de notre modèle « Boyardville », une jolie maison de 90m² avec ses 3 chambres, une salle de bain équipée et sa pièce de vie lumineuse de près de 45m², un porche d’entrée et un garage complètent ce bien. Proximité des grands axes et services.
Avec IGC, constructeur reconnu depuis plus de 40 ans, vous bénéficiez de toutes les garanties d’un constructeur solide et expérimenté pour construire en toute sérénité. N’attendez plus pour imaginer la maison qui vous ressemble !
Contactez Megan PERRIER (O6.47.73.57.37) pour une étude gratuite et personnalisée de votre projet.
Exemple d’enveloppe budgétaire pour la réalisation d’une maison IGC sur le terrain de nos partenaires fonciers. Maison prête à décorer, tous frais liés à la structure compris hors frais annexes (financier et notaire). Photo non contractuelle.
Les champs obligatoires sont marqués d’un astérisque (*). Les informations recueillies par IGC, à partir de ce formulaire, font l’objet d’un traitement informatisé nécessaire au traitement et à la gestion des relations commerciales. Ces données ne feront pas l’objet d’un autre traitement que celui mentionné. Conformément à la règlementation applicable, vous disposez d’un droit d’accès, de rectification et d’opposition aux informations vous concernant. Pour plus d’informations sur le traitement de vos données, consultez notre politique de confidentialité


